Irodánk
Miskolc, Széchenyi utca 46 1/2

Hívjon minket
+36 70 383 3710

Írjon e-mailt
info@maximalingatlan.hu

Eladó Sorház

74,99 M Ft

Alapterület

128m2

Telekterület

176m2

Szobák

4

Lépj kapcsolatba kollégánkkal:

Martincsek Péter

06703920392

maximal.martincsekpeter@gmail.com

Tulajdonságok

Lokáció

Felsőzsolca

Komfort

Dupla komfort

Állapot

Új építésű

Emelet

nincs megadva

Épület szintjei

nincs megadva

Építés éve

nincs megadva

Fűtés

Hőszivattyű

Erkély mérete

nincs megadva

Parkolás

Önálló garázs

Lift

nincs megadva

Pince

nincs megadva

Akadálymentes

nem

Közös költség

nincs megadva

Falazat

Tégla

Telek terület

176

Leírás

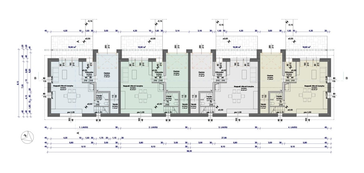
Eladó Felsőzsolca legújabb településrészén a település déli végén épülő 4 db. új építésű sorházi lakás. A beruházás elkezdődött ezt a képeken lehet is látni, a várható átadás 2026 vége.

Eladó új építésű nettó 109 nm-es nappali + 3 szobás kétszintes sorházi lakás saját garázzsal, kerttel és terasszal. Az ingatlan 30 cm-es vázkerámia külső falazattal épülnek melyre 15 cm-es homlokzati szigetelés kerül, míg a válaszfalak ytongból készülnek. A lakások közötti közös falfelületek hanggátló falazatból vannak. A modern nyeregtetős szerkezetre betoncserép héjazat kerül. Az ingatlan fűtéséről egy 9 kwh-os Samsung hőszivattyú gondoskodik padlófűtésen keresztül, az állandó meleg vízért egy 200 literes melegvíztároló felel. A külső nyílászárók műanyag minőségi hő és hangszigetelt 3 rétegű üvegezéssel és dupla gumis tömítéssel lesznek ellátva míg a beltéri ajtók woster gyártmányúak lesznek. A vizes helyiségek kerámia padló és falburkolattal készülnek, a többi helyiség laminált padlóburkolatot kap. A lakásban felhasználásra kerülő hideg és meleg burkolatok, beltéri ajtók színe, kilincsek, szaniterek tekintetében a vevőnek lehetősége van saját ízlésének megfelelőt választani amennyiben a beruházás abban a szakaszában vásárolja meg az ingatlant amikor ezek még nem kerültek beszerzésre és beépítésre. A lakások energiaigényét 3 fázis /3*20A/ biztosítja.

Helyiséglista földszint: nappali-konyha-étkező 36,5 nm , előszoba 4,2 nm , fürdő-wc 3,2 nm , tároló 2,2 nm , garázs 18 nm /elektromos garázskapuval/ terasz 17 nm, kert 110nm
Helyiséglista emelet: 3 db. hálószoba 15.6/9.2, 11.6/8.8, 12.2/9 nm a tetőtér miatt vannak így jelölve a nm-ek, az per jel előtti szám a helyiség alapterületét jelzi a második szám pedig azt az alapterületet ahol minimum 1,9 m belmagassággal rendelkezik, fürdőszoba 5.8/4 nm , háztartási helyiség 4.7/2.1 nm , wc 1,6 nm, közlekedő 7.2/6,2 nm, lépcső 6 nm

Az ingatlan elhelyezkedését tekintve zöldövezeti környezetben Miskolctól autóval 10 percre, városi buszközlekedéssel 20 percre található.
További kérdésekkel kapcsolatban vagy személyes megtekintés egyeztetése céljából keressenek bizalommal!

Lorem Ipsum is simply dummy text of the printing and typesetting industry. Lorem Ipsum has been the industry's standard dummy text ever since the 1500s, when an unknown printer took a galley of type and scrambled it to make a type specimen book. It has survived not only five centuries, but also the leap into electronic typesetting, remaining essentially unchanged. It was popularised in the 1960s with the release of Letraset sheets containing Lorem Ipsum passages, and more recently with desktop publishing software like Aldus PageMaker including versions of Lorem Ipsum.